Transform Your California Backyard into a Luxury Retreat
Discover how outdoor living in California can transform your backyard into a luxury resort-style retreat. Explore expert design tips, Lake Arrowhead insights, and value-boosting ideas from Karamia Designs.
Introduction to Outdoor Living in California
Outdoor living in California isn’t just a trend; it’s a lifestyle. With year-round sunshine, mild weather, and stunning natural landscapes, homeowners have a unique opportunity to extend their living space beyond the walls of their homes. At Karamia Designs, that vision starts from the inside out, whether it’s a complete interior design and remodeling project or a full outdoor transformation; every space is designed with the same resort-level intention.
In areas like Lake Arrowhead, where nature meets luxury, your backyard can become more than just a yard; it can become a private resort. Whether you’re starting with a kitchen redesign, a bathroom transformation, or an ADU conversion, we bring the same elevated vision to every corner of your home, inside and out.
Why Outdoor Spaces Matter in the California Lifestyle
Californians naturally gravitate toward outdoor living. From hosting gatherings to enjoying quiet evenings under the stars, outdoor spaces serve as a true extension of daily life, encouraging social interaction, enhancing mental well-being, and promoting active lifestyles for the whole family.
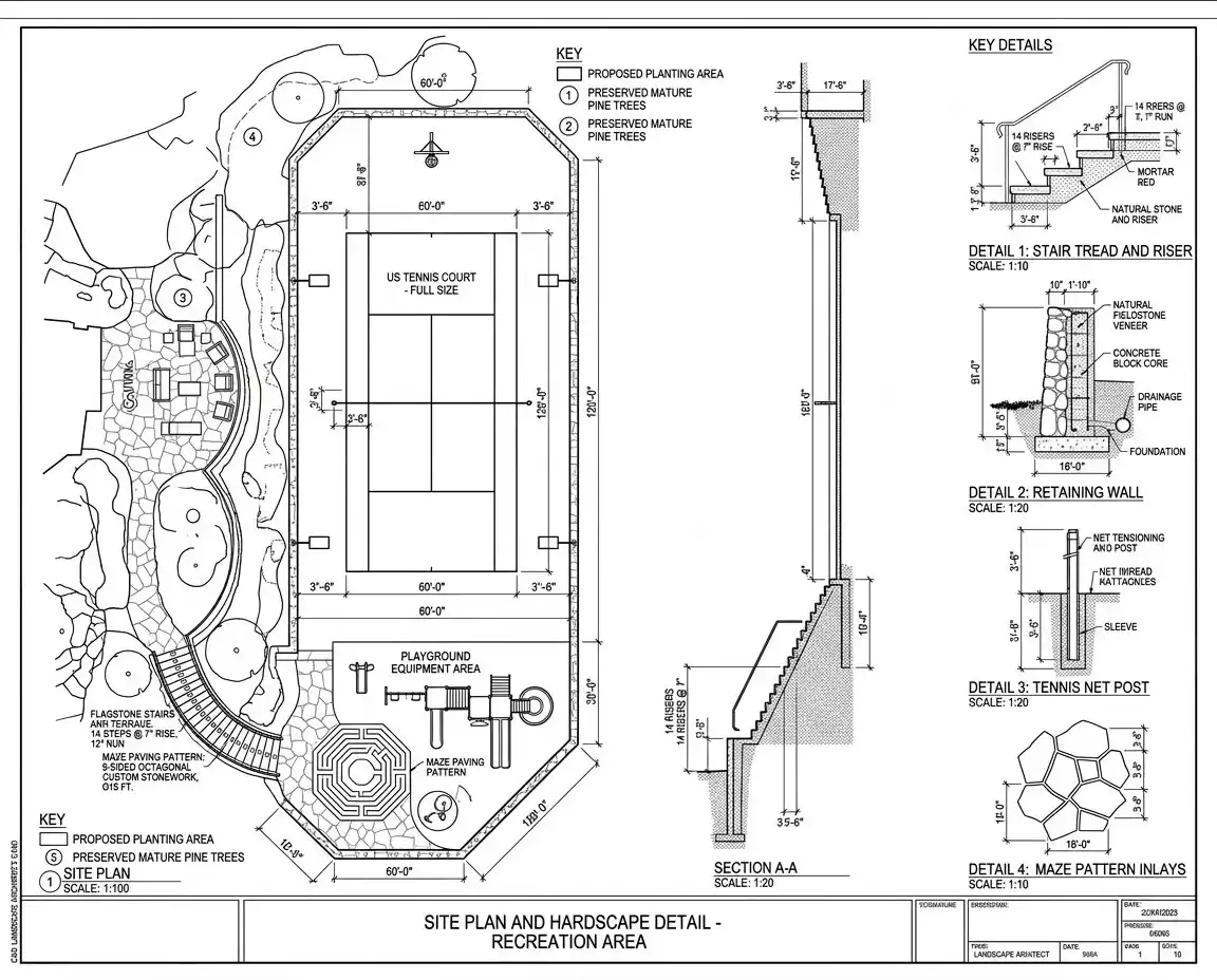
Before & After: Transforming a Backyard into a Resort Experience
Understanding the “Before” Space
Understanding the “Before” Space. The original space featured basic artificial turf, limited functionality, and underutilized terrain. While it had potential, it lacked purpose and design cohesion, something Karamia Designs excels at transforming into cohesive, resort-style environments.
Key Features of the New Design
Tennis Court Integration: A full-size professional tennis court transforms the backyard into an active lifestyle hub, providing daily recreation, entertainment for guests, and a high-value amenity that sets the property apart.
Custom Playground Design: A thoughtfully designed playground makes the space inclusive for every age. With multi-level structures, slides, swings, and climbing elements integrated naturally into the landscape, it is both safe and visually stunning.
Landscaping and Flow Layered landscaping, stone pathways, and elevation changes create seamless flow throughout, turning a simple yard into a destination.
Benefits of Outdoor Living in California
Climate Advantage for Year-Round Use
California’s climate allows homeowners to enjoy outdoor spaces for 10 to 12 months a year, making luxury outdoor design one of the most practical investments a homeowner can make.
Increased Property Value
Well-designed outdoor spaces consistently increase home value and buyer appeal. In premium markets like Lake Arrowhead, a resort-quality backyard can command a significantly higher sale price.
Wellness and Lifestyle Improvement
Time outdoors promotes physical activity, reduces stress, and brings families together away from screens and everyday distractions.
Design for Lake Arrowhead Properties
Lake Arrowhead’s sloped terrain, dense tree coverage, and soil conditions require specialized planning and engineering. The right design firm embraces these challenges, framing scenic views, using natural materials, and creating spaces that feel as though they genuinely belong within their mountain setting.
Key Elements of a Luxury Outdoor Living Space
A well-designed luxury backyard includes distinct zones: relaxation areas, dining spaces, sports and recreation features, and family play areas, all flowing naturally into one another. Strategic outdoor lighting extends usability into the evening and creates a magical nighttime atmosphere that completes the resort experience.
Why Invest in a Resort-Style Backyard
The upfront investment typically ranges from $50,000 to $500,000+ delivers measurable long-term returns: increased property value, reduced travel costs, and an elevated everyday quality of life. Why travel to a resort when you can live in one every day?
FAQs About Outdoor Living in California
- Is outdoor living in California worth the investment?
Yes, it significantly enhances lifestyle and property value.
- How much does a luxury backyard transformation cost?
Costs vary widely but typically range from $50,000 to $500,000+, depending on features.
- Can sloped properties like Lake Arrowhead be developed easily?
Yes, with proper design and engineering expertise.
- What features add the most value?
Tennis courts, outdoor kitchens, and custom landscaping.
- How long does a project take?
Usually 3–9 months, depending on complexity.
Conclusion: Turning Your Backyard into a Luxury Escape
Outdoor living in California offers a rare opportunity to blend luxury, nature, and lifestyle into one seamless experience. For homeowners in Lake Arrowhead and beyond, the message is clear: don’t just build a backyard, create a destination.
Contact us today to schedule your complimentary consultation and take the first step toward your luxury outdoor retreat.

